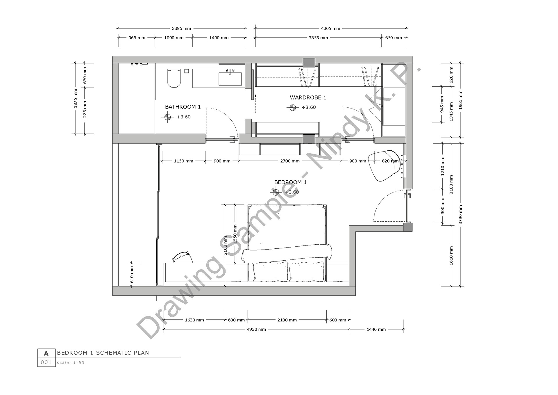
The design concept for this teenager's bedroom centers around creating a clutter-free, organized space that fosters creativity and productivity. By utilizing closed cabinetry and a neutral color scheme with strategic pops of color, the room achieves a clean, modern look that is both calming and stimulating.
Back to Top